La Halle au Blé se transforme en Centre de conservation
Le 30 septembre 2025
Depuis 2015, les collections ont quitté les espaces du Musée d’art et d’histoire, installé depuis 1936 dans le Logis du Roi et fermé au public, pour rejoindre de nouvelles réserves appelées à devenir un Centre de conservation.

La Halle au Blé en 2025 avant la deuxième phase d’aménagement de 2025-2026
Pour comprendre le projet de réhabilitation de la Halle au Blé, il est indispensable de s’intéresser aux différentes étapes franchies depuis 2015.
Musée d’art et d’histoire

Façade du Logis du Roi
2015
Lancement des travaux de réaménagement de l’espace d’accueil
Au cours des travaux, les murs et plafond sont mis à nu et révèlent l’existence d’un four à pain oublié mais aussi de lourdes pathologies affectant la structure même du bâtiment.
Fermeture le 25 novembre 2015 pour des raisons de sécurité
Echanges avec la Direction Régionale des Affaires Culturelles (DRAC) Normandie pour étudier l’ensemble des possibilités d’intervention sur le Logis du Roi, classé Monument historique et son jardin.
2016
Un diagnostic technique approfondi met en évidence la présence massive de plomb et d’amiante dans le bâtiment, imposant le transfert des collections.
Halle au Blé – Centre de conservation

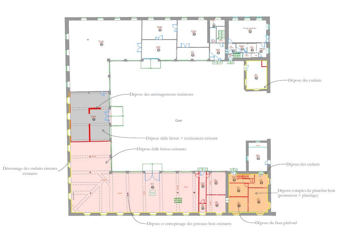
Plan de curage de la Halle au Blé – Centre de conservation, 16 janvier 2025.
En haut du plan, l’aile nord réaménagée en 2018 et ne subissant pas de travaux en 2025-2026
2017-2018
Aménagement des ailes nord et ouest de la Halle au Blé (ancien espace d’exposition temporaire) en espace de réserves afin d’accueillir les œuvres et de les conserver dans les meilleures conditions. Après plusieurs mois dédiés aux travaux, à l’identification et au conditionnement des œuvres, plus de 600 objets sont transférés avec l’assistance de restauratrices du patrimoine.
2025-2026
Travaux d’aménagement des ailes sud et ouest du Centre de Conservation des collections des Musées de Granville
En septembre 2025, la Halle au Blé connaît donc un nouveau tournant dans son histoire : l’aménagement des ailes sud et ouest, au rez-de-chaussée et à l’étage, pour permettre de conserver, étudier et récoler les collections dans des conditions optimales.
Le Centre de conservation des collections : un site réaménagé dans son intégralité pour accueillir les collections des trois Musées de Granville.
Construit en 1834 sur un terrain militaire, le bâtiment a connu plusieurs vies : halle aux grains municipale d’abord, magasin pour l’armée de 1884 à 1984, lieu d’exposition temporaire du Musée d’art et d’histoire de 1995 à 2014, il est aujourd’hui entièrement dédié à la conservation du patrimoine granvillais.
Les travaux se poursuivront jusqu’à la fin de l’année 2026 pour accueillir l’ensemble des collections (Musée d’art et d’histoire, Musée d’art moderne Richard Anacréon, Musée Christian Dior) dans un site répondant aux normes de conservation des collections des Musées de France. Environnement contrôlé et sécurisé, espaces fonctionnels, espaces de travail pour l’étude et le récolement des collections, tout est mis en œuvre pour une conservation optimale.
En septembre 2025, après plusieurs mois à vider les derniers espaces où étaient stockés des outils, des matériaux ou des éléments de décor, les travaux ont pu débuter par une phase de curage et de désamiantage des ailes sud et ouest, au rez-de-chaussée et à l’étage. L’aile nord et une partie de l’aile ouest, déjà réhabilité en 2018, ne sont pas impactés par ces travaux.
A terme, le Centre de Conservation des Musées de Granville bénéficiera de 1388m² exploités (contre 400m² jusqu’alors) dont 936m² de réserves. Le budget de ce projet s’élève à 2 255 000€ dont 600 000€ de subventions déjà annoncées par la DRAC pour l’année 2025. Les fonds européens FEDER sont également sollicités. Le chantier s’organise en plusieurs étapes jusqu’au deuxième semestre 2026, permettant aux collections d’intégrer les lieux fin 2026 et début 2027.

L’aile nord réaménagée en 2017-2018

L’aile sud dont le réaménagement débute en 2025
Les collections du Musée d’art et d’histoire en quelques chiffres
- Plus de 15 000 œuvres et objets : textiles, tableaux, mobiliers, collections maritimes…
- 12 500 notices enregistrées sur la base de données dont 9 000 accessibles au public sur collections.musees-normandie.fr et sur www.pop.culture.gouv.fr
- 150m3 d’objets anoxiés : ce procédé permet, par la privation d’oxygène, d’éliminer insectes et parasites et de désinfester les œuvres sans utiliser de produits chimiques
- 7 000 œuvres récolées : le récolement consiste à vérifier la présence des œuvres, leur état de conservation et leur adéquation avec l’inventaire




Photographies : © Benoit Croisy, coll. ville de Granville
Plan : Atelier Edouard Grisel